欢迎来到广东鑫邦活性炭生产厂家!本公司主营各种材质规格的蜂窝活性炭、柱状活性炭、颗粒活性炭、废气处理活性炭等产品。

免费咨询热线
136-1277-7675活性炭是一种具有多孔结构的吸附剂,其表面积较大,能有效吸附气体、液体或溶液中的有害污染物。其中,活性炭的脱硫能力备受关注。
硫化物是大气污染的主要因素之一,会对人们的健康和环境造成极大的危害。而活性炭被广泛用于脱硫工艺,其主要原理是将含有硫化物的废气或废水经过活性炭层滤净。
活性炭内部的孔洞结构可以吸附废气中的硫化物,使其被活性炭隔离。同时,活性炭的表面可附着各种活性物质,如铜、铅、银等,与硫化物形成化合物,达到有效过滤的效果。此外,活性炭与硫源接触时,硫源可被氧化成SO2,并进一步转化成硫酸,从而实现了脱硫处理。
活性炭的脱硫能力是其得以广泛应用的关键特性之一。随着人们对环境保护意识的日益增强,活性炭的用途也将越来越广泛。

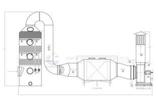
活性炭脱硫脱硝是一种环保治理技术,其工艺流程主要包括预处理、脱硫、脱硝以及废气处理四个环节。
首先是预处理,通常采用单级筛网除尘器,将颗粒物和烟尘过滤掉,保证进入下一阶段的气体的干净度。
接着是脱硫,即通过喷淋或吸附剂的方式吸收或反应萃取废气中的硫化物和二氧化硫,同时也可吸附小量的有机物。常用的吸附剂包括活性炭、沸石、氧化钙等。
然后是脱硝,常采用的是尿素选择性催化还原(SCR)工艺,通过喷淋介质将尿素引入反应器中进行催化还原,使氧化硝化物转化为氮气和水蒸气。
最后是废气处理,满足废气排放的环保要求。包括冷却、过滤、废气净化等工序,确保废气排放达到国家标准。
活性炭脱硫脱硝工艺是一种高效、环保的治理技术,能够有效地降低废气中硫化物和氮氧化物的含量,为保护环境、改善空气质量发挥着重要作用。

活性炭脱硫(Activated Carbon Desulfurization, ACD)工艺是一种通过吸附和反应去除燃烧废气中SO2的技术。活性炭是一种高度多孔的材料,有很强的吸附能力。在脱硫过程中,废气进入活性炭层,其中的SO2通过物理吸附和化学反应被活性炭吸附,并与炭表面活性位点上的碳酸盐或氢氧化物反应生成硫酸盐,最终实现SO2的脱除。
活性炭脱硫工艺具有很多优点,如高效、低成本、无二次污染等。其主要应用于燃煤电厂、焦化厂和钢铁厂等工业领域。目前,该技术已广泛应用于欧洲、美洲等国家,成为了一种较为成熟的工业脱硫技术。
需要注意的是,活性炭脱硫工艺的脱硫效率受到一些因素的影响,如废气温度、湿度、SO2浓度等。因此,在实际应用中需要根据具体情况采取相应的工艺措施,以确保达到良好的脱硫效果。

活性炭脱硫脱硝是一种常见的空气污染治理方法,通过使用活性炭材料吸附和催化转化,可以有效去除空气中的二氧化硫和氮氧化物。
具体原理是:活性炭具有高度的比表面积和孔隙结构,可以吸附大量的有机物和无机物分子。当空气中的二氧化硫和氮氧化物通过活性炭时,这些污染物分子会被活性炭表面的吸附位点捕获,从而使污染物得到降解和去除。
此外,催化转化也是活性炭脱硫脱硝的重要机理之一。活性炭的表面存在着许多活性位点,通过在这些位点上引入合适的催化剂,可以促使污染物的化学反应,从而将其转化为无害物质而完成去除。
活性炭脱硫脱硝技术简单可靠、成本低廉,被广泛应用于各类排放源的空气污染控制和治理。
广东鑫邦活性炭有限公司致力专注于柱状活性炭、颗粒活性炭、粉状活性炭、蜂窝活性炭生产与批发;广泛应用在:垃圾焚烧厂、黄金提取、工业废水处理、污水处理、废气处理、空气净化、喷漆烤漆房等 Copyright © 2002-2021 鑫邦活性炭厂家 版权所有 粤ICP备2021087261号