欢迎来到广东鑫邦活性炭生产厂家!本公司主营各种材质规格的蜂窝活性炭、柱状活性炭、颗粒活性炭、废气处理活性炭等产品。

免费咨询热线
136-1277-7675惠州在线活性炭吸附是一种来自环保行业的新技术,在当前全球环境污染日益严重的背景下,其应用前景广阔。
活性炭是一种具有非常强的吸附能力的材料,它能够有效地吸附并去除空气和水中的有害物质。在惠州地区,大气污染和水污染问题也日益突出,活性炭的应用成为解决这些问题的有效手段之一。
在线活性炭吸附技术是指将活性炭以固定床形式装置在管道中,将被吸附的废气或废水通过活性炭床进行处理。通过物理吸附、化学吸附和生物附着等多种机制,将有害物质吸附在活性炭表面,达到净化空气和水的目的。
惠州在线活性炭吸附技术的应用十分广泛,从家庭空气净化到工业废水处理都能看到其身影。在工业生产中,大量废气和废水会产生有害气体和污染物,通过活性炭吸附可以有效地去除这些有害物质,减少对环境的危害。
此外,活性炭吸附还可以用于净化空气中的有害气体,如甲醛、苯等有害物质,对室内空气净化起到积极的作用。在家庭中,人们可通过购买在线活性炭吸附器或空气净化器,将活性炭放置其中,达到净化空气的目的。
综上所述,惠州在线活性炭吸附技术的应用前景广泛。它可以有效地净化空气和水,保护人们的健康和环境的生态平衡。随着人们环保意识的提高,相信活性炭吸附技术将在惠州以及全国范围内得到更广泛的应用,为构建绿色清洁的生态环境贡献自己的力量。

广东信誉好的活性炭吸附箱厂家专业生产
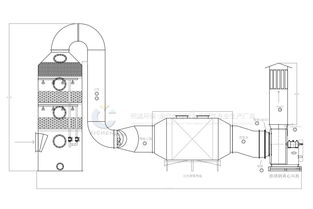
活性炭吸附箱是目前市场上广泛应用的一种环保材料,具有很强的吸附能力和去除有害气体的功能。在广东地区,有一家信誉好的活性炭吸附箱厂家专门从事生产这种环保产品。
这家厂家拥有先进的生产设备和技术团队,能够根据客户需求定制各种规格的活性炭吸附箱,满足不同行业的需求。他们选择优质的原材料,并采用严格的生产工艺,保证产品质量的稳定性和可靠性。
值得一提的是,该厂家对产品的质量控制非常严格。他们拥有一套完善的质量管理体系,从原材料采购、生产制造到产品包装,每个环节都严格把控,确保每一台活性炭吸附箱都符合国家标准和客户要求。
此外,这家厂家还注重研发与创新。他们拥有一支专业的研发团队,不断追求技术创新和产品升级。通过不断改进工艺和提高产品性能,他们已经成为广东地区活性炭吸附箱行业的佼佼者。
客户的满意是这家厂家追求的目标。他们以优质的产品、良好的售后服务和合理的价格,赢得了广大客户的信赖和好评。无论是对公司还是消费者来说,选择这家广东信誉好的活性炭吸附箱厂家,都是一个明智的选择。
综上所述,广东信誉好的活性炭吸附箱厂家专业生产的产品质量可靠、服务优质,是市场上的领先品牌。无论是用于工业生产、环境治理还是家庭使用,选择他们的产品都能够获得良好的效果。

惠州博罗县高端活性炭吸附箱厂家是一家专业从事活性炭吸附箱制造的企业,位于广东省惠州市博罗县。活性炭吸附箱是一种有效去除空气中有害气体和异味的设备,广泛应用于家庭、商业和工业领域。
该公司致力于研发和生产高质量的活性炭吸附箱,采用优质的活性炭材料和先进的生产工艺,确保产品具有出色的吸附效果和长久的使用寿命。产品设计精巧,结构合理,能够有效吸附并去除空气中的有害气体,如甲醛、苯、TVOC等,有效改善室内空气质量,保护人们的健康。
此外,该厂家还提供个性化的定制服务,根据客户的需求,定制不同尺寸和形状的活性炭吸附箱,以满足不同场所的使用需求。无论是家庭、办公室、商场还是工厂,他们都能提供最适合的解决方案。
该公司拥有专业的技术团队和严格的质量控制体系,确保产品的质量稳定可靠。他们秉承“质量第一、客户至上”的原则,始终以客户需求为导向,不断创新和提升产品的性能和质量。
综上所述,惠州博罗县高端活性炭吸附箱厂家是一家专业、可靠的制造商。他们提供高质量的活性炭吸附箱产品,并致力于为客户提供个性化的定制服务。在改善室内空气质量、保护人们的健康方面,他们发挥着重要的作用,并为广大消费者提供了可信赖的选择。

广东性能可靠的活性炭吸附箱厂家是指在广东地区能提供高品质、可靠性能的活性炭吸附箱的制造商。活性炭吸附箱是一种用于吸附、净化空气中有害气体和颗粒物的设备,广泛应用于工业、商业和家庭环境中。
在广东地区,有许多性能可靠的活性炭吸附箱厂家,它们以优质的产品和卓越的技术而闻名。这些厂家拥有先进的生产设备和严格的质量控制体系,确保其产品的制造过程和产品质量达到国际标准。
广东性能可靠的活性炭吸附箱厂家的产品具有以下几个特点。它们采用高效的活性炭材料,能够有效吸附和过滤空气中的有害气体和颗粒物。这些产品经过精密设计和制造,具有良好的密封性和耐用性,能够长时间稳定地运行。此外,这些产品还具有智能控制系统,能够自动监测和调节空气质量,提供安全、健康的空气环境。
广东性能可靠的活性炭吸附箱厂家的产品广泛应用于工业废气处理、室内空气净化、烟气脱硫等领域。这些产品不仅在国内市场上享有很高的声誉,还出口到许多国家和地区。
综上所述,广东性能可靠的活性炭吸附箱厂家凭借优质的产品和专业的制造技术,成为了行业的翘楚。无论是在工业过程中净化空气,还是在家庭和商业环境中改善空气质量,这些产品都发挥着重要的作用。对于广东地区的客户来说,选择性能可靠的活性炭吸附箱厂家,能够保证他们得到高品质、可靠的产品和优质的服务。
广东鑫邦活性炭有限公司致力专注于柱状活性炭、颗粒活性炭、粉状活性炭、蜂窝活性炭生产与批发;广泛应用在:垃圾焚烧厂、黄金提取、工业废水处理、污水处理、废气处理、空气净化、喷漆烤漆房等 Copyright © 2002-2021 鑫邦活性炭厂家 版权所有 粤ICP备2021087261号