欢迎来到广东鑫邦活性炭生产厂家!本公司主营各种材质规格的蜂窝活性炭、柱状活性炭、颗粒活性炭、废气处理活性炭等产品。

免费咨询热线
136-1277-7675企业用活性炭处理方案是一种常见的水处理方法,适合于各种规模的企业。活性炭是一种吸附性强的物质,能够有效地去除水中的有机物、异味、杂质等。采用活性炭处理水可大幅减少废水排放对环境的影响,提升水的质量。
在善用企业用活性炭处理方案的同时,企业还需注意以下几点:
1. 流程优化:要充分考虑整个流程,从水的源头、处理、产生废水、输出等各个环节控制好水的使用、回收、循环利用等。
2. 合理选型:选择合适的活性炭材料,满足不同水质的处理需求。并根据实际情况确定投放量、使用方式等。
3. 安全保障:操作过程中,需要严格按照操作规程进行,保证水的安全和稳定性。
通过合理使用企业用活性炭处理方案,助力企业轻松达到环保要求,提高经济效益和社会效益。

活性炭通常是用于吸附有害气体或化学物质的一种材料,它具有高效的吸附能力。但是当活性炭使用完毕时,我们应该如何处理它呢?
我们应该明确一点,使用过的活性炭不应该直接扔进垃圾桶中。因为它可能会继续释放吸附的有害物质,对环境造成污染。
一种处理活性炭的方法是将其送到专门的垃圾处理中心进行处理。这些中心会采取适当的措施,如高温烧毁、压缩或化学处理等,来确保活性炭的无害化处理。
另外,活性炭可以通过再生利用来减少浪费。再生处理是将使用后的活性炭放入一个处理设备中,使用高温和水蒸气进行处理,以去除吸附的有害物质,然后可以重新使用。
正确处理使用过的活性炭是我们每个人的责任,避免对环境造成负面影响。无论是送到垃圾处理中心进行处理还是进行再生利用,都是非常可取的做法。

活性炭是一种理化吸附材料,具有很强的吸附性能,适用于多种领域。比如在水处理、空气净化和医药等方面都有广泛的应用。但是,活性炭的吸附效果和寿命随着使用时间的增长会降低,而用过的活性炭该如何处理呢?
我们需要了解活性炭的处理方式。一般来说,可将用过的活性炭送至危险废物处理机构进行回收处理。这些机构可以使用化学或热解方式处理活性炭,将其还原为原始的碳材料,从而为再利用做好准备。
此外,用过的活性炭可以被称为“废品”,被视为有害垃圾,不应直接丢弃于一般垃圾桶中。因为其中可能会存在一些化学物质或有机物,对环境和人体健康都会造成损害。
综上所述,用过的活性炭应送至正规的回收机构进行专业处理。而大家在使用活性炭的过程中要注意固定更换时间,及时更换用过的活性炭,保障其有效性和寿命,也是保护环境和健康的重要措施之一。

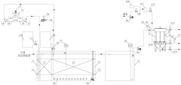
活性炭废气处理流程是一种广泛应用于工业废气治理领域的方法。该流程主要是利用活性炭的吸附性能,将废气中的污染物、有害气体等物质吸附到活性炭表面上,达到净化废气的目的。
具体的处理流程包括:将废气通过预处理设备去除其中的大颗粒物和油雾,然后将处理后的废气引入活性炭吸附柱中。在吸附柱中,废气进入活性炭层,污染物被吸附并留在活性炭表面。当活性炭饱和后,需要对其进行再生处理。在再生处理中,将高温下的空气或蒸汽通入吸附柱中,将吸附的物质热解或蒸发出来,达到活性炭再生的目的。经过处理后,被淨化和再生的废气经过排放处理后,即可达到环保标准。
总体而言,活性炭废气处理流程通过对废气中的污染物和有害气体进行吸附,达到净化废气的目的。该流程具有良好的处理效果、稳定性高、耐用等特点,因此在废气治理领域得到了广泛的应用。
广东鑫邦活性炭有限公司致力专注于柱状活性炭、颗粒活性炭、粉状活性炭、蜂窝活性炭生产与批发;广泛应用在:垃圾焚烧厂、黄金提取、工业废水处理、污水处理、废气处理、空气净化、喷漆烤漆房等 Copyright © 2002-2021 鑫邦活性炭厂家 版权所有 粤ICP备2021087261号