欢迎来到广东鑫邦活性炭生产厂家!本公司主营各种材质规格的蜂窝活性炭、柱状活性炭、颗粒活性炭、废气处理活性炭等产品。

免费咨询热线
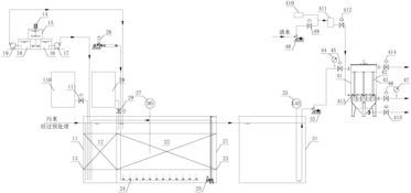
136-1277-7675活性炭是一种非常常见的环保材料,它因其独特的吸附性质得到了广泛应用。其中之一的应用就是过滤污水。
污水中含有各种有机物、细菌、病毒等物质。这些物质有时会对环境和人类健康造成不良影响。通过将污水经过活性炭过滤,可以有效去除其中的污染物,提高水的质量。
活性炭的吸附性质能够将污水中的有害物质附着在其表面上,从而减少了污染物的数量和浓度,充分保持了污水的净化效果。同时,活性炭的结构也能够过滤微小颗粒,使水的悬浮物质得以清除。
因此,在清理污水的过程中,活性炭成为了一个非常重要的材料。采用活性炭过滤污水可以实现环保与保护人类健康的目的,是一个非常切实有效的解决方案。

活性炭是一种具有高度吸附能力的材料,被广泛用于污水处理中。它的主要作用是去除水中的有机物质和氯化物等污染物。
在污水处理过程中,活性炭可以被添加到废水中,形成一个过滤层,将水中的污染物吸附到活性炭表面上。由于活性炭表面具有大量的孔隙和微孔,因此能够有效地吸附污染物,从而提高水的质量。
此外,活性炭还可以去除水中的异味和色差,提高饮水的口感。在处理工业废水时,活性炭还具有去除重金属离子的效果。
需要注意的是,活性炭在使用过程中会逐渐饱和,需要定期更换,以保证其吸附效果。同时,活性炭产生的废弃物也需要得到妥善处理,以免对环境造成污染。
活性炭在污水处理中具有重要的作用,能够有效地去除水中的有机物质和氯化物等污染物,提高水的质量。

活性炭是一种高效的净化材料,可以用来净化水源中的有害物质。同时,它的孔隙结构也能够吸附水中的重金属、氯、有机污染物等,从而提高饮用水的品质。因此,活性炭可以作为一种优秀的水处理剂来使用。
活性炭对饮用水的净化效果主要依赖于以下两个方面。活性炭具有极大的比表面积,从而具有很强的吸附能力。活性炭的化学性质特殊,能够快速吸附水中的有害物质。因此,利用活性炭进行饮用水的净化处理,能够有效去除水中的有机物、颜色、异味等污染物,而且不会增加水中其他化学物质的浓度,确保了水的安全性。
在实际应用中,活性炭通常直接投入水中,或是装在净水器中进行过滤。但值得注意的是,活性炭只能去除水中的污染物,而不能杀菌消毒。因此,在喝水前还需要将水进行消毒,以保障健康安全。另外,由于抗菌能力弱,所以活性炭放置时间过久会导致菌群在内部繁殖,劣化吸附能力,所以我们要定期更换活性炭。
活性炭是一种理想的饮用水净化材料,但使用时需要注意其净水效果和消毒运用。

长期饮用活性炭过滤水在现代生活中越来越受到人们的关注。活性炭是一种石墨烯材料,其纳米孔可以吸附并去除水中的色素、异味、氯气等有害物质,使水更加清澈、甜美。而且由于活性炭是一种天然的材料,使用它过滤水并不会产生任何有害物质,非常安全。此外,长期饮用活性炭过滤水还有许多其他的好处。例如,活性炭可以去除水中的有害元素,如铅、铜等重金属,减少了我们摄入这些有害物质的风险。此外,活性炭过滤器也可以阻止有害细菌和微生物的繁殖,使饮用水更加安全卫生。因此,长期饮用活性炭过滤水对我们的健康非常有益,值得我们在日常生活中加以注意。
广东鑫邦活性炭有限公司致力专注于柱状活性炭、颗粒活性炭、粉状活性炭、蜂窝活性炭生产与批发;广泛应用在:垃圾焚烧厂、黄金提取、工业废水处理、污水处理、废气处理、空气净化、喷漆烤漆房等 Copyright © 2002-2021 鑫邦活性炭厂家 版权所有 粤ICP备2021087261号