欢迎来到广东鑫邦活性炭生产厂家!本公司主营各种材质规格的蜂窝活性炭、柱状活性炭、颗粒活性炭、废气处理活性炭等产品。

免费咨询热线
136-1277-7675挥发性有机化合物(VOCs)是影响空气质量的关键因素之一。它们是一类可以在常温下迅速挥发成气体状态的化合物,可以来自于化学工业、汽车尾气、漆工、印刷和清洁剂等许多来源。长期暴露在高浓度的VOCs环境下会对人体健康造成危害。因此,如何治理VOCs成为了一个亟待解决的问题。
使用活性炭是治理VOCs的一种常用方法。活性炭是一种具有高表面积和高孔隙度的材料,能够吸附和储存气态的VOCs。通过物理吸附过程,将周围空气中的VOCs捕捉在活性炭的表面,可以在治理室内空气污染方面发挥重要作用。
但需要注意的是,活性炭只能对VOCs进行物理吸附,并不能将其永久地化解。因此,在使用活性炭治理VOCs方面需要一定的技术,及时更换和维护活性炭,才能保证治理效果的实现。
综上所述,活性炭是治理VOCs的有效方法之一。但需要注意的是,使用活性炭仅仅是治理手段之一,对于VOCs的治理还需要多种手段的综合使用和有效的治理策略。

挥发性有机物(VOCs)是指在常温下能够蒸发成气态的有机化合物,如苯、甲醛、乙酸等。它们对空气质量和人类健康都有着严重的影响,比如在室内可能导致头痛、呼吸系统疾病等。因此,治理VOCs的问题也变得越来越紧迫。
VOCs治理方案包括源头控制和治理技术两个方面。源头控制包括减少VOCs排放、优化生产工艺等措施,以避免VOCs生成。而治理技术则通过物理、化学、生物等方法对VOCs进行去除。物理治理技术主要包括吸附、净化、过滤等方法,其中吸附是最常用的方法;化学治理技术则主要有催化氧化、燃烧等方法,这些方法都具有较高的综合效率。
除了源头控制和治理技术,加强室内通风也是解决VOCs的简单有效方式之一,定期通风可有效减少房间内的VOCs含量。此外,人们还可以通过购买低挥发性有机物产品、使用环保清洁剂等方式减少VOCs的排放,并构建更加健康、环保的家庭和生活环境。
VOCs治理是一个长期的过程,需要从源头控制和治理技术入手,同时加强室内通风和环保意识的培养也是不可忽视的环节。

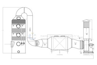
活性炭吸附VOCs是一种常见的废气处理技术,它通过将废气经过活性炭床,利用活性炭的大量孔隙结构和吸附能力,从而将废气中的VOCs进行吸附和分离,从而达到净化废气的效果。
该工艺流程通常由以下几个步骤组成:需要将含有VOCs的废气通过气体处理装置进行前期处理,包括降温、降湿等,从而使VOCs能够更好地被活性炭吸附。然后,将处理后的废气送入活性炭吸附床内,经过一段时间的吸附作用后,VOCs会被活性炭吸附,净化后的废气会被排出,将废弃的废气通过安全的处理方式进行回收利用或直接排放。
需要注意的是,活性炭吸附床有一定的吸附能力,当其饱和时,需要进行更换或再生,以保证废气净化效率。因此,在实际应用中,需要根据具体情况选择合适的活性炭材料、床层数量等参数,以达到最佳的废气处理效果。
活性炭吸附VOCs的工艺流程简单、易于操作,适用于多种行业,是一种较为成熟的废气处理技术。

VOCs废气处理工艺活性炭是一种常用的空气治理方法。VOCs是揮發性有機物的燃烧后产生的气体,它们对环境和人体健康有害。活性炭是一种具有高度微孔结构的吸附剂,通过各种物理和化学反应去除空气中的污染物质。在VOCs废气处理中,在深度提高空气质量的同时还能回收利用已被吸附的VOCs,达到节约能源、减少废物排放的目的。活性炭的性质和吸附效果受到其制造工艺、原料及处理方法等影响。所以选择质量好的活性炭工艺生产活性炭对于VOCs废气处理工艺的效果和工程成本有着重要的影响。经过严格筛选的活性炭不仅可以减少空气污染带来的健康危害,还将节约能源、减少废物排放,有效促进可持续发展。
广东鑫邦活性炭有限公司致力专注于柱状活性炭、颗粒活性炭、粉状活性炭、蜂窝活性炭生产与批发;广泛应用在:垃圾焚烧厂、黄金提取、工业废水处理、污水处理、废气处理、空气净化、喷漆烤漆房等 Copyright © 2002-2021 鑫邦活性炭厂家 版权所有 粤ICP备2021087261号